现代简约-钟鼎山庄-三室两厅-142㎡

全包/现代简约/三室两厅

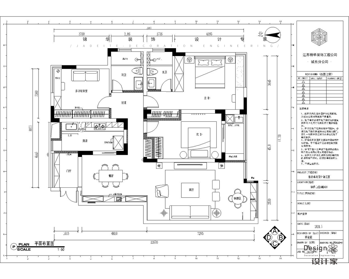
设计说明:“空间如人,温柔而有力量。”本设计以现代简约美学为基底,融入细腻的女性视角,为知性优雅的女主人打造了一处兼具实用与诗意的理想居所。本案是高知退休人员,主要居住两人.隐性养老设计.设计师将室内空间做了整合,呈现出规整的南北阳台.既满足了门厅的存在感,又同步实现了南面阳台功能与看景的共生感.三个卧室保留,给予足够品质与收纳功能.重点对厨房与设备空间进行数据分析,得出厨房最大操作空间.吊柜内隐藏进口升降拉杆,轻松摆放,不受高度影响.每一处细节都细说着对品质生活的理解.历久弥新,优雅温馨,愿温馨时光洒满每一处爱的角落。

现代简约-钟鼎山庄-三室两厅-142㎡装修-三室两厅-现代简约

现代简约-钟鼎山庄-三室两厅-142㎡装修-三室两厅-现代简约

现代简约-钟鼎山庄-三室两厅-142㎡装修-三室两厅-现代简约

现代简约-钟鼎山庄-三室两厅-142㎡装修-三室两厅-现代简约

现代简约-钟鼎山庄-三室两厅-142㎡装修-三室两厅-现代简约

现代简约-钟鼎山庄-三室两厅-142㎡装修-三室两厅-现代简约

现代简约-钟鼎山庄-三室两厅-142㎡装修-三室两厅-现代简约

现代简约-钟鼎山庄-三室两厅-142㎡装修-三室两厅-现代简约

现代简约-钟鼎山庄-三室两厅-142㎡装修-三室两厅-现代简约

现代简约-钟鼎山庄-三室两厅-142㎡装修-三室两厅-现代简约

现代简约-钟鼎山庄-三室两厅-142㎡装修-三室两厅-现代简约

0条评论

评论

最新活动

老房翻新一步到位,锦华改造家二手房换新专家
活动时间:6月1日-8月31日 活动地点:1865创业产业园c4栋西2楼
  • 客厅总价: 0
  • 卧室总价:0
  • 厨房总价:0
  • 卫生间总价:0
  • 阳台总价:0
  • 其他预算:0
  • 管理费:0
  • 税金:0
整装装修报价: 0元起

该报价仅适用于毛坯房,稍后客户经理联系您,如有任何问题可以咨询客服。

025 86607900
咨询电话 在线客服

网友评论,不代表锦华装修观点

评论